услуга CAD проектиране

Професионално планиране на Вашата градина

Услуга CAD проектиране

Независимо дали разработвате нов проект или допълвате вече съществуващ дизайн на дворното пространство, елегантното и добре проектирано пространство около къщата подчертава грижата за запазване на характера на имота, както и устойчивия подход към опазването на околната среда. Красивото дворно пространство повишава както функционалността, така и стойността на Вашия имот. 
 
Със Semmelrock можете да поръчате индивидуален дизайн на мечтаните пътеки, водещи до вашата къща, алея, тераса или градински пътеки.
Нашите Ландшафтните архитекти притежават дългогодишен опит в проектирането на частни и обществени пространства. Те ще Ви помогнат да вземете предвид всички особености на обекта и да изберете подходящото в решение, така ще спестите на себе си и Вашето семейство излишен стрес и непредвидени разходи.
 

Консултации и възможност за въвеждане на промени:

  • В наше лице ще откриете креативен съмишленик, който ще Ви помогне да реализирате идеите си.
  • Професионална подкрепа на проекта от първоначалния етап на предварителното планиране до последната стъпка от реализацията.
  • Личен контакт с ландшафтните архитекти по време на реализацията на Вашия проект.
  • Консултация в мострената градина на Semmelrock при избора на подходящ продукт.
  • Ще Ви предложим идеи как да комбинирате настилките красиво и ефективно.

Какво включва услугата CAD планиране?

Готовият CAD проект включва:

  • Пълноцветен план с всички продукти.
  • Трасировъчен чертеж, който ще улесни Вас и полагачите в процеса на монтажа на настилките и аксесоарите.
  • Подробна количествена сметка на избраните продукти, така че да планирате разходите и времето си максимално ефективно.
  • Препоръчителни детайли за полагане и монтаж на продуктите.

Пълноцветен план

2D план

Пълноцветният 2D план визуализира как би изглеждало пространството с продуктите на Semmelrock.

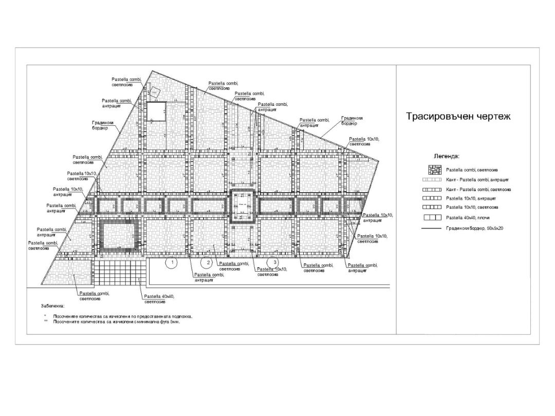
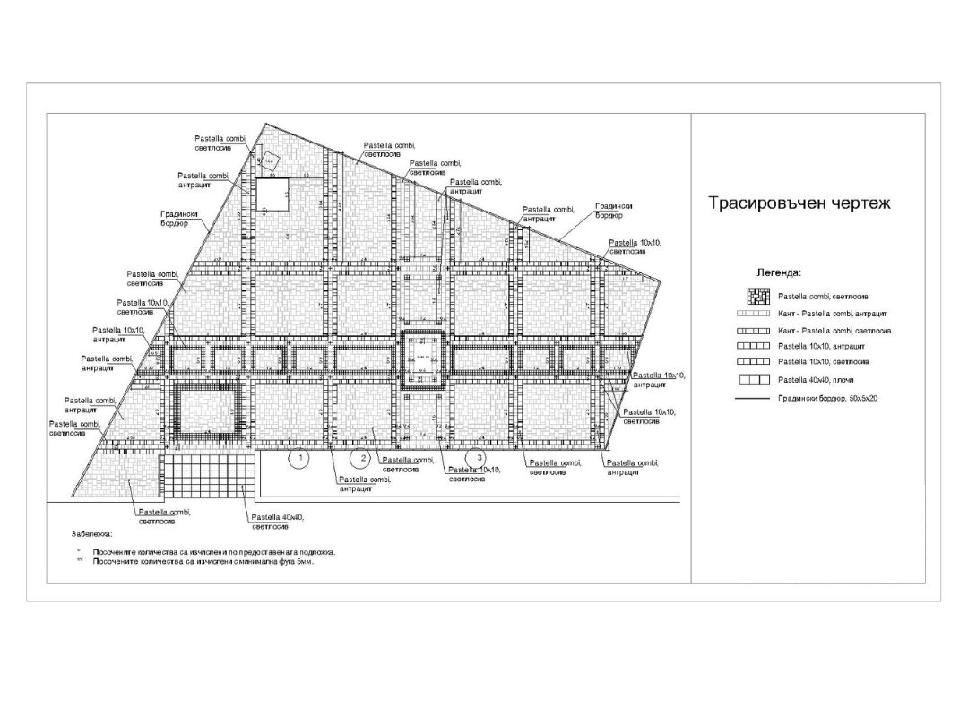
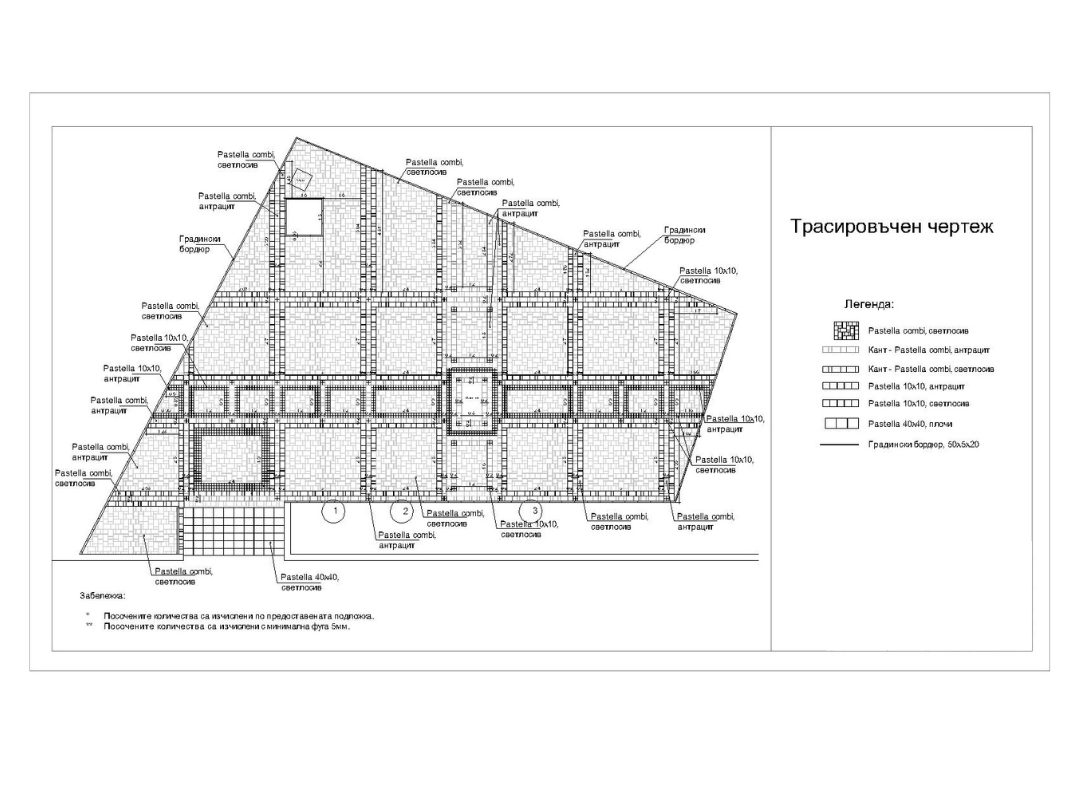
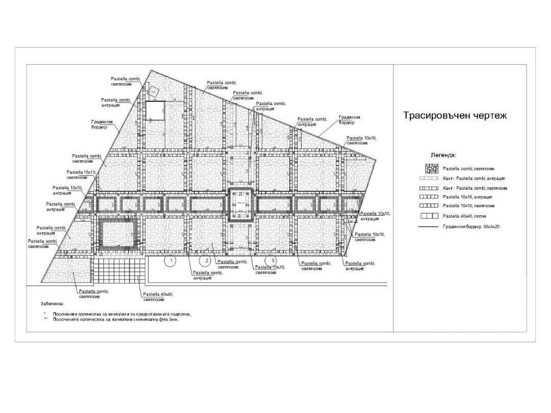
Трасировъчен чертеж

2D план

Дава информация за местоположението на продуктите в тяхната последователност.

Количествена сметка

към план настилки

Точна количествена сметка на използваните в проекта продукти на Semmelrock.

Препоръчителен детайл

2D план

Препоръчителни детайли за монтаж на всички продукти, съобразно спецификите на терена.

Как да изберете подходящия пакет за Вас:

За да удовлетворим потребностите на нашите клиенти създадохме три пакета, но как да изберете кой от тях е подходящ за Вашия казус?

1 вариант

1 вариант

До 3 варианта:​

  • 3 проекта с един и същи продукт, различна подредба​
  • 3 проекта, всеки с различен продукт
STANDARD пакет
EXCLUSIVE пакет
PREMIUM пакет

DWG или PDF с нанесена алейна мрежа

DWG или PDF без алейна мрежа /за цялостно проектиране/

DWG или PDF с нанесена алейна мрежа

1 вариант

 

 

1 вариант

 

 

До 3 варианта:​

  • 3 проекта с един и същи продукт, различна подредба​
  • 3 проекта, всеки с различен продукт

Пълноцветен план + КСС + Трасировъчен чертеж + детайли

 

Пълноцветен план + КСС + Трасировъчен чертеж + детайли

Пълноцветен план + КСС + Трасировъчен чертеж + детайли

До 300 m2 – до 15 работни дни​

Над 300 m2 – до 20 работни дни

До 300 m2 – до 15 работни дни​

Над 300 m2 – до 20 работни дни

До 300 m2 – до 20 работни дни​

Над 300 m2 – до 40 работни дни

1.50 лв/m2 | 0.77 евро/m2 без ДДС​

1.80 лв/m2 | 0.92 евро/m2 без ДДС​

2.50 лв/m2 | 1.28 евро/m2 без ДДС

Референтни проекти

Вижте малка част от проектите реализирани с услугата CAD планиране. Те отразяват дългогодишният опит и всеотдайната работа на нашите ландшафтни архитекти:

ланд. арх. Айля Ахмед

Свържете се с нас

E-mail: aylya.ahmed@semmelrock.com

Тел.: +359 887 701 326

blur abstract background

Ако не сте сигурни кой е подходящият за Вас пакет, попълнете контактната форма и наш служител ще се свърже с вас, за да Ви помогне в избора на услугата.

Вашите лични данни ще бъдат третирани конфиденциално. Вашето съгласие може да бъде оттеглено по всяко време (например по телефон 0700 15 477 или по имейл office.bg@semmelrock.com).

Оттеглянето на съгласието Ви не засяга законността на обработването, основано на даденото от Вас съгласие, преди неговото оттегляне. За подробна информация относно съхраняването, обработката и изтриването на данни, а също и Вашите права по използването на личните Ви данни, може да се насочите към Защита на личните данни.

Социални мрежи

Точки на продажба